Ref: 113
A Xerta oferim un terreny rústic amb un gran habitatge junt amb 1.926 m2 de construccions agropecuàries, magatzems. Baix Ebre. Tarragona.
El terreny es de 12.716 m2 i es troba a 500 m. del centre de Xerta i per tant a 14 minuts de Tortosa.
Disposa de subministrament d’aigua, electricitat de la xarxa pública i al estar a prop del poble te cobertura telefònica.
PREU: 117.000€
UBICACIÓ I ENTORN:
POBLACIÓ: Xerta
SITUACIÓ: Zona de la Sèquia.
CARACTERISTIQUES DE LA PROPIETAT:
FINCA: Superfície de 12.716 m.2 dels quals 7.120 m2 son de cultiu. Consta de una finca Registral i dues cadastrals.
EDIFICACIONS:
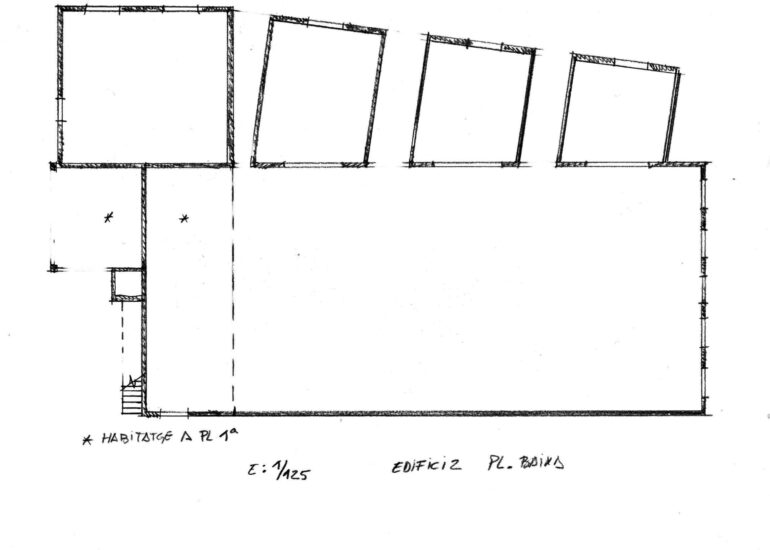
La propietat consta de 8 edificacions separades.
(*) Veure detalls plànols i situació urbanística.
- Edifici .
- Estructura del pou d’aigua i dipòsit superior
- Superfície: 6.25 m2.
- Estructura del pou d’aigua i dipòsit superior
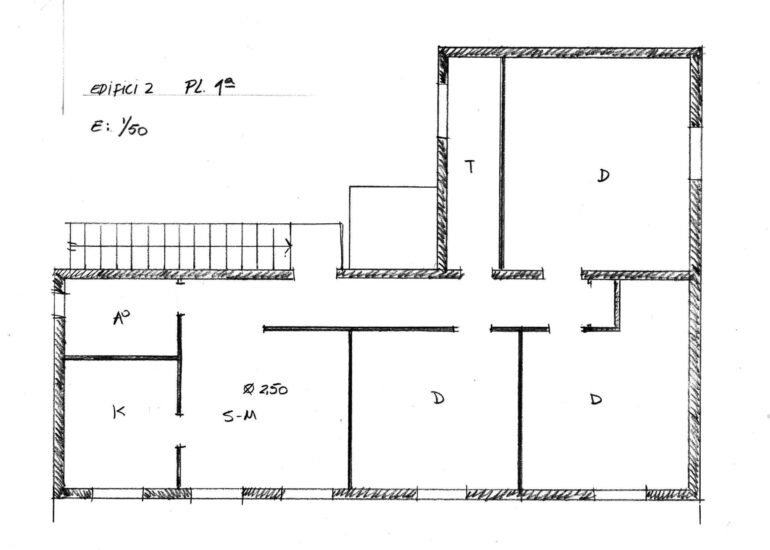
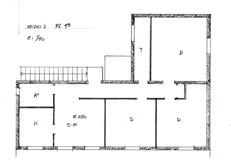
- Edifici 2 de dues plantes:
- Planta Baixa Magatzem, en part com annex a l’habitatge de planta 1ª. Superfície:
- Planta Baixa: 500.15 m2
- Planta 1ª habitatge: 83.63 m2 Pot aprofitar-se la planta baixa per ampliar l'abitatge. De fet es un annexe al pis.
- Porxo: 13 m2
- Bassa: 9.25 m2
- Planta Baixa Magatzem, en part com annex a l’habitatge de planta 1ª. Superfície:
- Edifici 3.
- Nau de planta baixa compartimentada en dos parts i en bon estat
- Superfície: 253.5 m2
- Nau de planta baixa compartimentada en dos parts i en bon estat
- Edifici 4.
- Nau de planta baixa compartimentada i en bon estat
- Superfície: 230 m2
- Nau de planta baixa compartimentada i en bon estat
- Edifici 5. Nau de planta baixa compartimentada i en bon estat
- Superfície: 270 m
- Edifici 6.
- Nau de planta baixa i en bon estat
- Superfície: 270 m2
- Nau de planta baixa i en bon estat
- Edifici 7 .
- Nau de planta baixa corrals en part cobert i tancat i en part sols delimitat
- Superfície coberta: 240 m2
- Superfície descoberta: 330 m2
- Nau de planta baixa corrals en part cobert i tancat i en part sols delimitat
SUPERFICIES RESUM.
- Superfície ocupada: 2.127,78 m2
- Construïda coberta i tancada i porxat al 50%: 1.760,13 m2
- La superfície construïda segons el Registre de la Propietat es de:1.780.30 m2
- La superfície construïda segons el Cadastre es de:1.926 m2
SUBMINISTRES:
- Aigua: De pou propi. A de mes Per la finca hi passa l’aigua de la xarxa de regants de la font de la Sèquia i pot connectar-se a la xarxa del servei minicipal
- Electricitat: Connexió a la xarxa pública.
ACCÉS: La finca te molt bon accés:
- 400 m des de la C12 per l’entrada NORD a Xerta.
- Des de Xerta per el carrer Carretera de San Carles.
SITUACIÓ URBANISTICA
Les seves múltiples edificacions, les quals disposen de llicencia de fa anys, ofereixen la possibilitat de desenvolupar un projecte agropecuari i amb la disponibilitat d’un habitatge unifamiliar existent com a ús complementari o secundari de l’activitat agropecuària principal.
Entre d’altres usos s’admet: Habitatge rural. Residencia temporal en treball d’activitat agrària. Magatzem. Centres de jardineria Vivers o planters annexos. Exposició i venda de pedres naturals i àrids. Serradores. Fabrica de pinsos. Plantes d’aglomerants i morter. Usos turístics. Restauració. Allotjament. Aparcament. Àrees de manteniment. Gestió de residus. Equipaments educatius i esportius. Gosseres. Cellers. I molts d’altres a consultar.
ENTORN
- A Xerta podeu trobar molts motius d’esbarjo com visitar l’Assut, excursions de ciclisme o a peu per la Via Verda, visitar les cases nobles i també la gastronomia.
- A tan sols pocs minuts en cotxe, trobareu les platges de L’Ampolla i els arrossars del Delta i marisc de Sant Carles de la Ràpita
- La immediatesa del camp amb oliveres, ametllers, fruitals i vinyes dels que podràs degustar les garnatxes i altres varietats de la D.O. Terra Alta, així com contemplar les obres arquitectòniques de Tortosa i dels cellers modernistes de Gandesa i Pinell del Brai.
- Aquesta zona té bones comunicacions de transport públic, autobús o tren amb totes les ciutats Barcelona, Tortosa, Saragossa, Reus, Tarragona i recarrega les teves energies envoltades d'una naturalesa exuberant, o practicar ciclisme a la Via Verda.
- Estaràs envoltat de paisatges impressionants com el Ports de Tortosa-Beseit i Serra de Cardó, tindràs accés a tota la cultura i gastronomia local del Baix i Ribera d’Ebre i de la Terra Alta.
Contacta amb nosaltres per obtenir més informació. Prem en “CONTACTE” i hi trobaràs tant el meu telèfon com el formulari amb el correu electrònic per poder resoldre els teus dubtes.


















































































































