Casa de poble a Batea amb terrassa i garatge, 226 m²
Aquesta casa de poble a Batea amb terrassa i garatge, 226 m² ofereix amplitud, llum i una ubicació privilegiada a l’Avinguda Aragó, a només 200 m del centre. Amb cinc dormitoris, garatge i terrassa, és una oportunitat perfecta per viure amb comoditat en un entorn tranquil i amb vistes obertes sobre el poble i els camps de la Terra Alta.
Característiques principals
PREU: 75.000€
Habitatge en bon estat estructural, distribuït en diverses plantes, amb garatge i terrassa. Els dormitoris són amplis i la cuina està moblada. Es pot habitar immediatament o adaptar als gustos personals. Ideal com a residència familiar o inversió de futur.
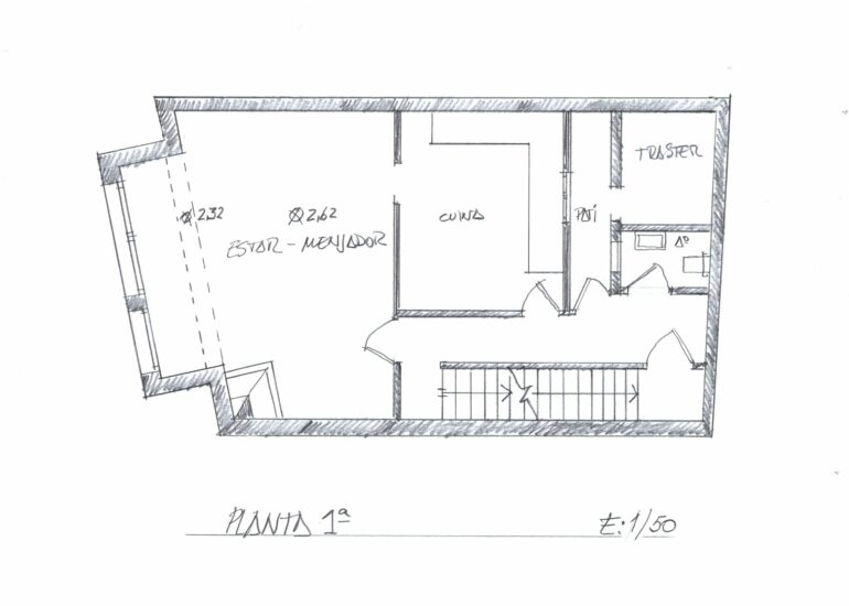
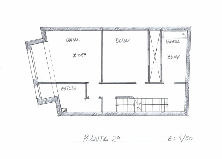
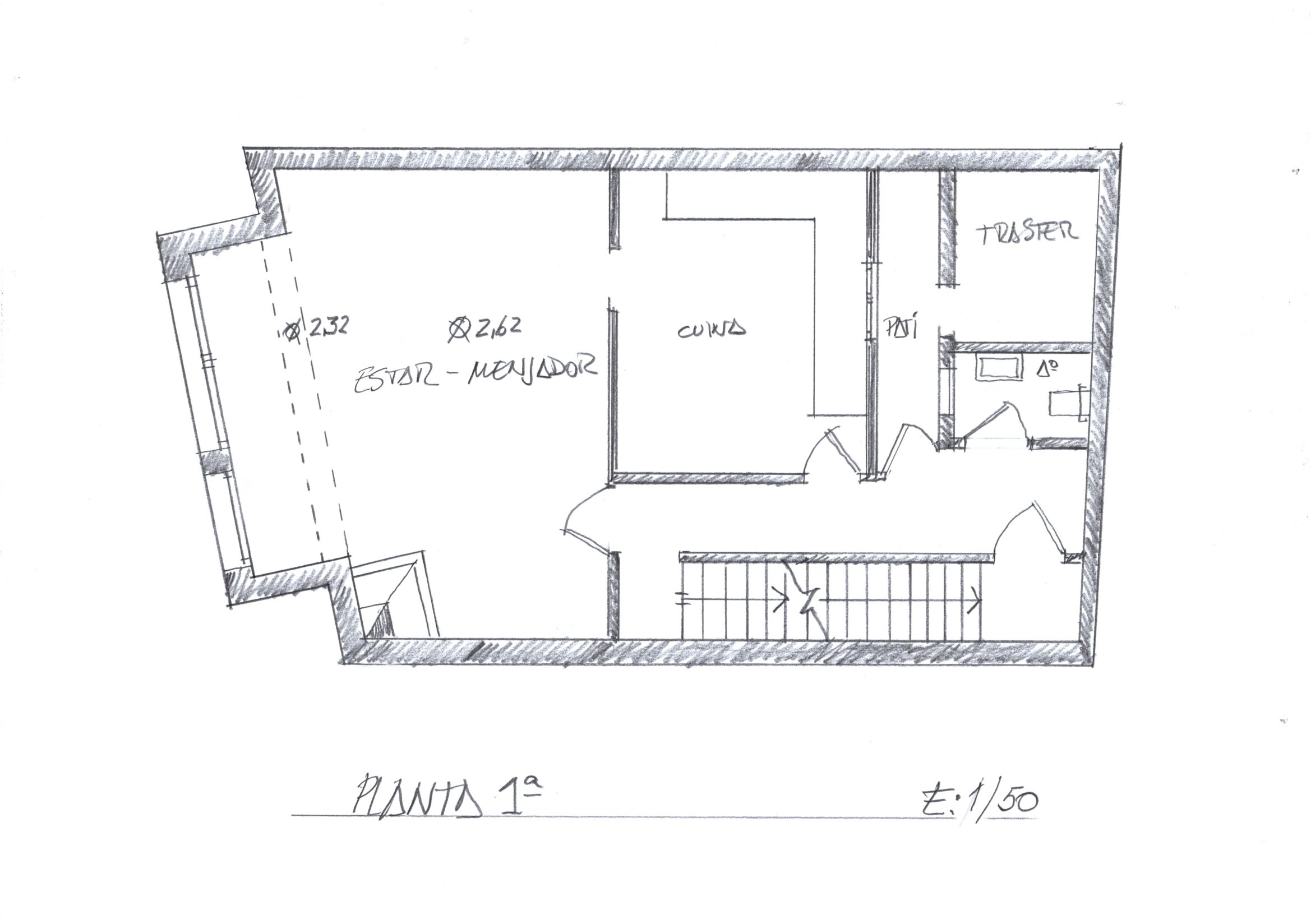
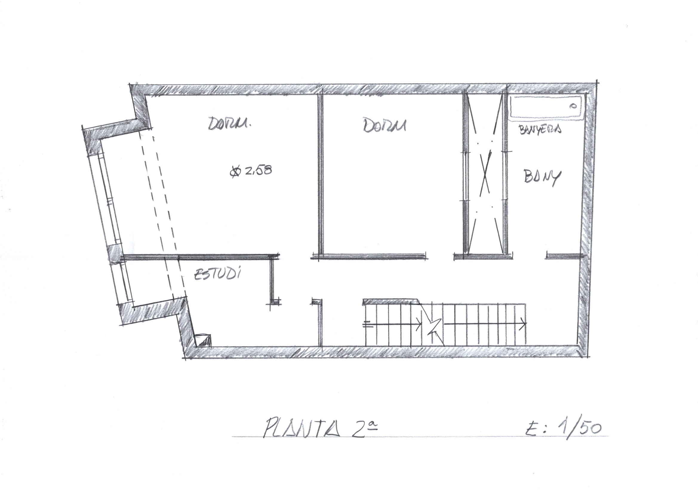
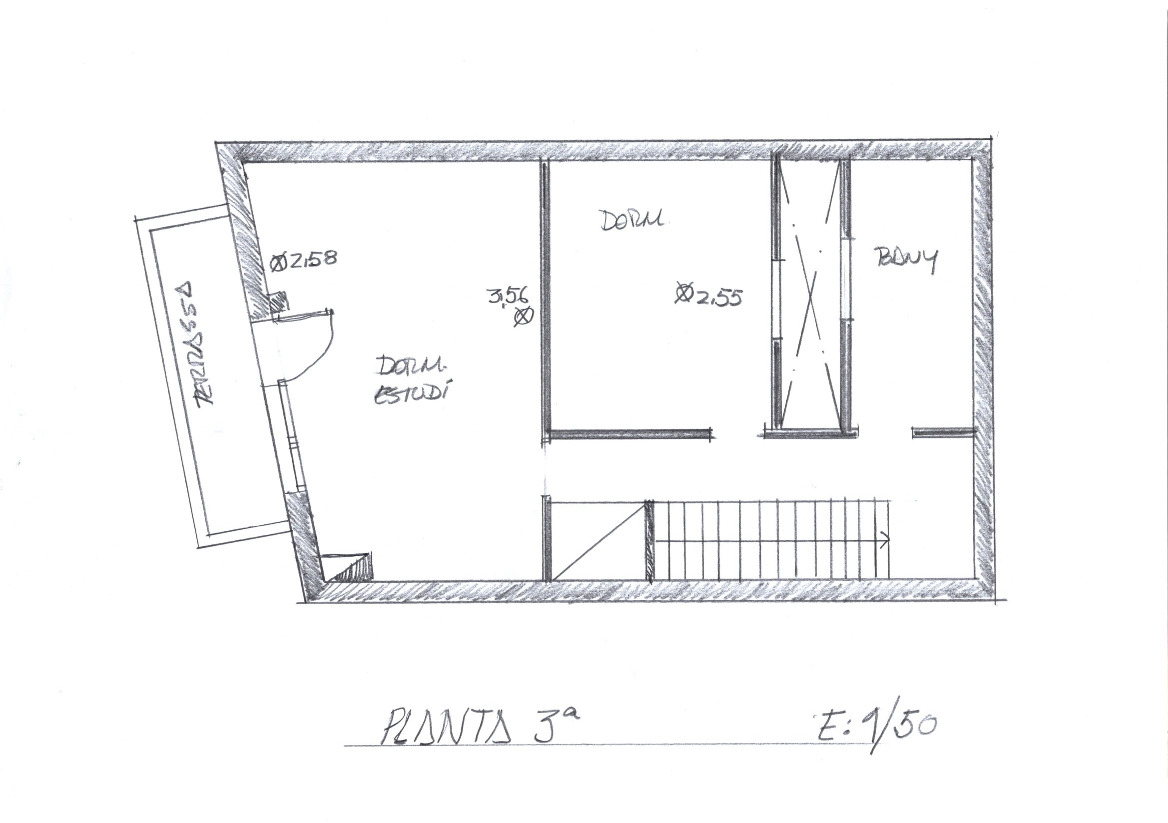
Superfícies: 155,93 m² útils i 226,20 m² construïts.
Distribució per plantes:
PB: 35,84 m² útils / 54,11 m² construïts
1a planta: 40,03 m² útils / 58,99 m² construïts
2a planta: 40,03 m² útils / 58,99 m² construïts
3a planta: 40,03 m² útils / 54,11 m² construïts
Ubicació i accés
Situada a l’Avinguda Aragó 18 de Batea, amb accés per carrers asfaltats i molt propera a la carretera principal. A pocs minuts caminant de la Plaça Catalunya, amb serveis i comerços a l’abast. Zona molt tranquil·la i fàcil per aparcar.
Subministraments disponibles
Disposa dels principals serveis urbans: aigua, llum, clavegueram i connexió telefònica. Possibilitat d’instal·lar fibra òptica i millorar l’eficiència energètica amb reformes lleugeres. Els serveis cal donar-los d’alta.
Entorn i activitats
Batea, al cor de la Terra Alta, conserva el seu encant medieval amb carrers històrics com el Carrer Major i el Carrer del Mig. Des del mirador del Picatxo es gaudeixen panoràmiques del poble i del paisatge agrícola. A l’entorn hi ha camins rurals, vinyes, oliveres i ametllers, ideals per passejar o fer cicloturisme per la Via Verda. També es pot practicar enoturisme visitant els cellers modernistes de Gandesa i Pinell de Brai. A pocs quilòmetres hi ha pobles com Horta de Sant Joan, Bot, Calaceite o Vallderroures, i espais naturals com les Olles de Bot, perfectes per banys d’estiu.
Ús potencial i valor afegit
La seva superfície i distribució permeten adaptar-la com habitatge unifamiliar, casa rural o allotjament amb diverses unitats. La planta baixa pot servir com a local comercial o magatzem i garatge, ampliant el seu potencial d’inversió. El seu valor de revalorització és alt, donada la ubicació i dimensions.
Serveis al poble
Batea disposa de tots els serveis essencials: farmàcia, centre mèdic (CAP), institut, piscina climatitzada i transport públic HIFE amb connexió regular a capitals com Barcelona, Tarragona, València i Saragossa.
Contacte
Fes clic aquí CONTACTE: https://www.rusticfinca.com/contacte, amb nosaltres per més informació o truca’ns directament per visitar aquesta casa a Batea. Estarem encantats d’ajudar-te.




















































































