Ref. 088
Al centre de Batea casa de poble entre mitgeres de 250 m2. En molt bon estat. amb tots els serveis, inclòs moblat, i per tant llest per entrar a viure-hi.
Al centre de Batea un habitatge de 250 m2 amb 6 dormitoris i llest per entrar a viure-hi.
Al centre de Batea un habitatge de 250 m2 fàcilment re distribuïble en 3 o 4 apartaments
Actualment es un habitatge de 5 plantes de 46 m2 cada una amb un total de 6 dormitoris.
Està en molt bon estat i amb tots els serveis, inclòs moblat, i per tant llest per entrar a viure-hi i gaudir d’aquest magnífic lloc.
Fent reformes es pot redistribuir de manera que fàcilment sortissin 3 apartaments o 2 habitatges amb garatge i trasters a planta baixa.
088
Al centre de Batea casa de poble entre mitgeres.
Actualment es un habitatge de 5 plantes de 46 m2 cada una amb un total de 6 dormitoris.
Està en molt bon estat i amb tots els serveis, inclòs moblat, i per tant llest per entrar a viure-hi i gaudir d’aquest magnífic lloc.
Fent reformes es pot redistribuir de manera que fàcilment obtindre 3 apartaments o 2 habitatges amb garatge i trasters a planta baixa.
PREU: 100.000 €
POBLACIÓ: Batea. Terra Alta Tarragona
SOLAR TOTAL SUPERFICIE: 38 M2. Segons cadastre.
SUPERFÍCIE EDIFICADA: 250 M2. Segons cadastre.
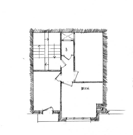
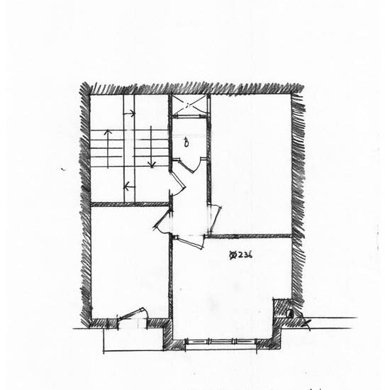
Distribució per plantes. S’adjunten plànols i fotografies.
- Planta Baixa: 38 m2. Garatge
- Planta Primera: 44,53 Menjador, estar, cuina i un bany
- Planta Segona: 44,53 Tres dormitoris i un bany.
- Planta Tercera: 44,53 Tres dormitoris i un bany.
- Planta Quarta: 22,53 +22 m2 de terrassa m2. Un safareig.
ESTAT DE L’EDIFICACIÓ: Està en molt bon estat amb els serveis i llesta per entrar a viure-hi
ACCES: Carrer de la Font 26. Batea. Tarragona
DOTACIÓNS: Municipals d’aigua, electricitat, telefono (fibra Óptica)
ORIENTACIÓN: Façana principal al nord amb terrassa assolellada en la planta superior.
SERVEIS
Batea està a 12 min. de Gandesa a on tens tots els serveis necessaris, des de comerç, Institut, comunicacions d’autobusos a Barcelona, Tarragona, Valencia etc....com a capital de comarca disposa de tots els serveis.
A Batea i ha els serveis necessaris per viure amb comoditat i seguretat, des-de el CAP, bona restauració, i altres equipaments com gimnàs, pista de pàdel, piscina climatitzada...
ENTORN
Batea, a la Terra Alta, és un poble medieval, i per tant amb molta historia que la podràs veure a traves de seu ben conservat patrimoni.
Conèixer la historia del carrer Major, el carrer del Mig, amb els seus portals. Podràs reviure com a la nit, els ravals, els hostals de camí i els masos del terme restaven incomunicats amb la vila A l’hora del toc del lladre, eren tancats tots els portals a pany i clau, barres i cadenes, i no es tornaven a obrir fins al dia següent a la matinada.
La cultura del vi, fortament arrelada la podràs gaudir practicant l’enoturisme. poble situat a prop dels ports, te magnifiques vistes que podràs gaudir des de el mirador del Picatxo.
Podràs gaudir de moltes activitats relaxants tant al acollidor i tranquil poble com del seu entorn.
Contacta amb nosaltres per obtenir més informació. Clica a “CONTACTO” i hi trobaràs tant el meu telèfon com el formulari amb l'e-mail perquè pugui resoldre els teus dubtes.













































































