REF.074
Un mas a Bot amb magnífiques vistes i amb un jardí d'oliveres a nivell de la casa i conectat a l'aigua de red de regants
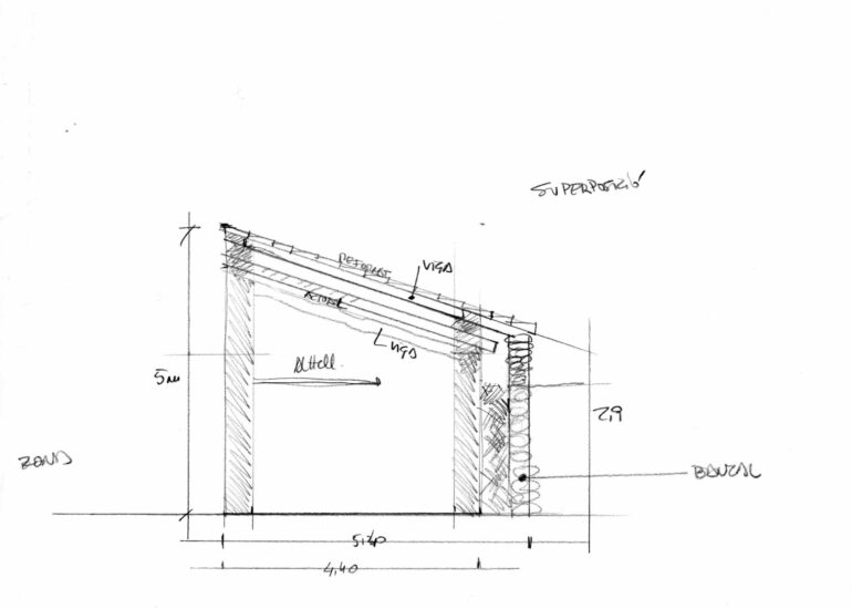
En aquest mas, a reformar, com tots, pots arribar a tenir una superfície de 90 m2 mes altells per viure a un paradís rodejat de les millors i espectaculars vinyes de la denominació d’origen Terra Alta.
A 9 minuts de Bot per bon accés.
Tens un jardí excepcional, d’espectaculars i antigues oliveres situades en front i a nivell del mas i al darrera d’elles unes magnífiques vistes dels ports amb un silenci i tranquil·litat absolutes.
¡Descobreix un lloc de 29.258 m2, aïllat, amb aigua, i molt a prop del poble de Bot! Per viure en plena natura i, estan ben comunicat, gaudir d’una tranquil·litat absoluta.
Aprofita per fer realitat la teva idea de vida en el teu refugi allunyat de de les grans aglomeracions i si vols puguis tenir el teu hort, galliner i ser autosuficient
PREU: 50.000 €
POBLACIÓ: Bot
SITUACIÓ: Camins Travesseres - Morellet.
FINCA SUPERFICIE: 29.258 m2.
EDIFICACIÓ SUPERFICIE CONSTRUIDA: 75,6 m² mes corrals i ampliació opcional, en total 90 m2.
PLÀNOLS: Amb les fotografies.
DOTACIÓ D’AIGUA: Connectada a la ret de regants de la Terra Alta.
PLANTACIÓ: Oliveres empeltre: 2.000 m2
ORIENTACIÓ: A quatre vents.
ACCES: A 9 minuts de Boten camí en bon estat i carretera.
Disfruta dels banys a Les Olles o de la bicicleta a la via verda.
Contacta amb nosaltres per obtenir més informació. Clica a “CONTACTO” i hi trobaràs tant el meu telèfon com el formulari amb l'e-mail per a que pugui resoldre els teus dubtes.














































































