Ref. 061
Casa Català. Una casa senyorial i de poble. Es del segle XV, situada al carrer Major, al centre de Batea. La Terra Alta. Tarragona.
Té una superfície de 1.077 m2 repartides en 5 plantes, per un preu extraordinari de 200.000€.
És una casa senyorial, de poble rústica a renovar, situada al davant de l'Ajuntament i al costat de La Capella de la Verge del Portal i certament al centre del poble.
En primer lloc, pot instal·lar-hi casa seva o un hotel rural o les dues coses.
Per fer:
- Uns lofts amb terrassa a la coberta, des de a on te unes vistes espectaculars.
- Locals comercials a planta baixa,
- Degustació de vins O. i oli,
- Taller d’artista, hobby,
- També es pot dividir i fer-hi varis habitatges
- O una mica de cada, doncs es pot dividir.
CARACTERÍSTIQUES DE LA PROPIETAT
Es un habitatge que ocupa un solar molt llarg amb dues façanes, i per tant ben ventilada. Una d’elles que dona al carrer Major i l'altra, que dona a un petit carrer sense sortida i per tant tranquil, per sobre del qual s'alça l'habitatge.
La façana al carrer Major és tota de carreu i a la planta baixa té uns porxos que, junt als de les cases veïnes, formen tota una via de circulació porticada al carrer Major motiu de rellevància de l’edificació
Descobreix la tranquil·litat a Batea terra de la garnatxa!
Submergeix-te en aquesta propietat i disfruta al centre del nucli antic, passejant per els seus carrers que expliquen la història des del S.X i la seva arquitectura medieval amb les emblemàtiques arcades gòtiques com les del carrer del mig.
Imagina les possibilitats infinites: que ofereix aquest espai. Aquí pots fer realitat els teus somnis! Combina habitatge amb tallers d'artistes, de hobby, de jocs, billar, música, gimnàs, sauna. A més, gaudeix d’un possible terrat de 200 m2 amb vistes espectaculars Deixa volar la teva imaginació! i converteix-ho en el "palau" dels teus somnis.
UBICACIÓ I ENTORN:
POBLACIÓ: Batea
SITUACIÓ: Carrer Major nº 7. Al extrem de la Plaça Catalunya. Al centre del poble.
PREU: 200.000 €
EDIFICACIÓ:
SOLAR TOTAL SUPERFICIE: 231 M2. Segons cadastre.
SUPERFÍCIE EDIFICADA: 1.157 M2. Segons cadastre
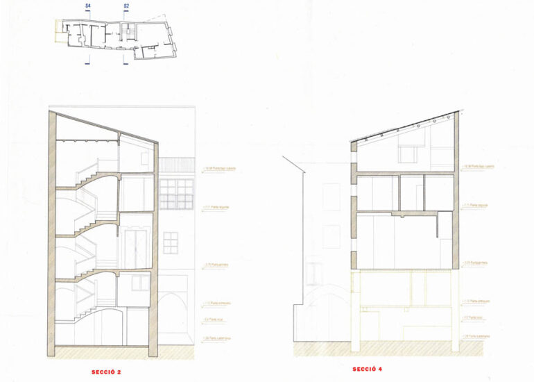
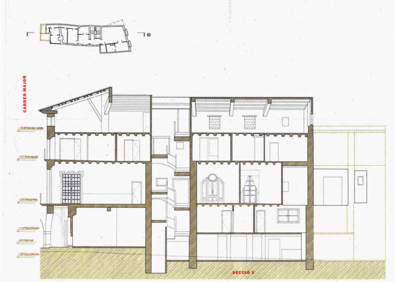
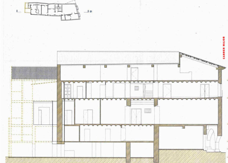
Distribució per plantes.
- Baixa: 211,02 m2 – Vestíbul, Garatge, magatzem, local.
- Entresol: 151,07 m2 – Dependències varies
- Primera: 250,60 m2 – Vestíbul, despatx, Sala – menjador, 3 Dormitoris, armaris, cuina, lavabo, i dos balcons al carrer Major.
- Segona: 254,21 m2 – 6 Cambres dormitoris i dependències.
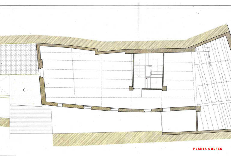
- Tercera – sota coberta, golfes: 210,27 m2.
El plànols i superfícies corresponen al document de “Estudis previs de rehabilitació” fet per SOFFITTO Arquitectura SLP i facilitats per l’ajuntament de Batea.
QUALIFICACIÓ URBANÍSTICA: Sol urbà. A1 Planta baixa+2+golfes
ESTAT DE L’EDIFICACIÓ: Molt bon estat, a reformar o renovar segons convingui.
DOTACIONS i SUBMINISTRES:
- Municipals d’aigua, electricitat, telefono (fibra Óptica).
- Amb l’alta de subministres vigent.
ORIENTACIÓ: Façana principal a nord-est al carrer Major i lateral a sud.
Cal contar amb l’opció de terrassa assolellada en la planta superior disposant de una espectacular vista del entorn.
SERVEIS
- Batea disposa de tots els serveis necessaris per viure i treballar amb comoditat i seguretat.
ENTORN
- Podràs gaudir de passejar per el casc antic amb tota la seva historia templera per el carrer Major. El carrer principal de la Vila Closa, que donava accés a l’Església i al Castell per mitjà d’unes arcades gòtiques de l’edat mitjana.
- La Capella de la Verge del Portal. Edifici veí. Aquest portal, originàriament “el Portal d’Aragó”, era el més representatiu del poble
- La immediatesa del camp amb oliveres, ametllers, i vinyes dels que podràs degustar les garnatxes i altres varietats de la D.O. Terra Alta, així com contemplar les obres arquitectòniques dels cellers modernistes de Gandesa i Pinell del Brai.
Contacta amb nosaltres per obtenir més informació. Clica a “CONTACTO” i hi trobaràs tant el meu telèfon com el formulari amb l'e-mail perquè pugui resoldre els teus dubtes.






















































































































