Casa de poble de 144,7 m2 a Gandesa. La Terra Alta. R:112.
Aquesta casa de poble de 144,7 m2 a Gandesa està molt ben situada. Té un pati, sala, menjador-cuina, 4 habitacions, 2 banys garatge i magatzem.
- Ben ventilada, doncs té dos façanes a carrer de la Rosa i a carrer Iriarte.
- És fàcil d’adequar la planta baixa com a garatge.
- Aquesta casa de poble és ideal per convertir-la en la teva llar ja que té diferents espais on hi pots fer el que t’agrada de forma privada i un tant independent.
I cal senyalar que té un preu sorprenent de només 55.000 €, el que fa que aquesta inversió sigui intel·ligent i assequible!
Característiques principals de la finca
- Ubicació: Accés per Carrer de La Rosa 3 i Iriarte 13. Al centre de Gandesa, Terra Alta, Tarragona
- Terreny de: 41 m²
- Superfície construïda: 144,7 m² inclosos els 11,20 m2 de terrassa
- Preu: 55.000 € – No deixis escapar aquesta oferta!
- Qualificació urbanística: Sòl urbà.
- Accés: A 70 m del ajuntament i a 1 minut de la plaça del Comerç centre de la vila.
- Estat de l’edificació: En molt bon estat estructural i està preparada per viure-hi des del primer dia.
Orientació:
- La façana al carrer La Rosa te l’orientació est i la del carrer Iriarte, al costat oest, i això fa que tinguin sol i llum natural tot el dia.
- I això també ho garanteix les golfes que fàcilment son re convertibles en una fantàstica terrassa situada al últim pis, dalt de tot de la casa.
Distribució de la casa rural: La casa compta amb una distribució funcional i ben organitzada i per tant això fàcilita que es pugui ajustar a les teves idees i treure’n el màxim profit. Per tant es ideal per adequar-la a les teves necessitats i fer-hi la llar dels teus somnis.
- Planta baixa (40,8 m²): Vestíbul, traster, bany, magatzem-garatge i el pati. Un espai versàtil que per lo tant, podries convertir-lo en un local per llogar, estudi, taller creatiu o un ‘altre habitació.
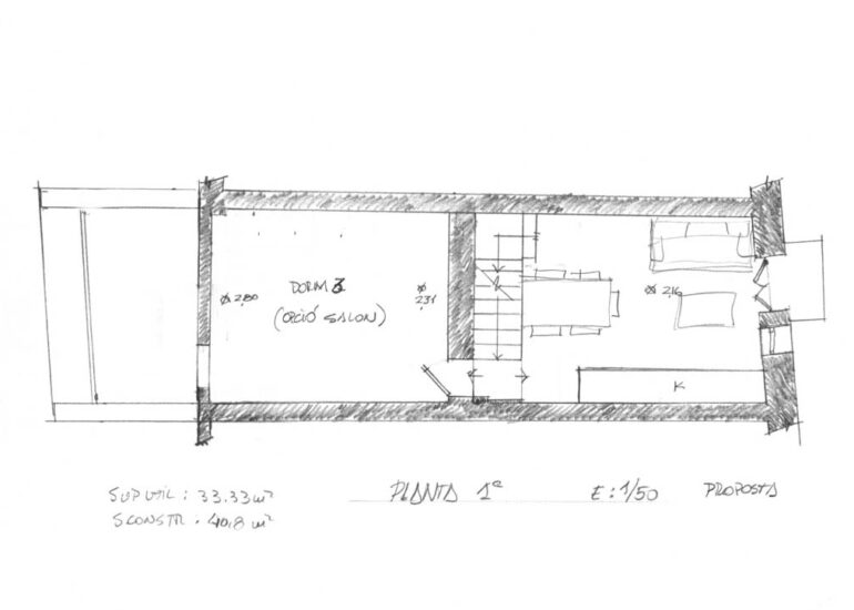
- Planta Primera (40,8 m²): Sala, cuina- menjador lluminosa, amb balcó al carrer de La Rosa i una habitació.
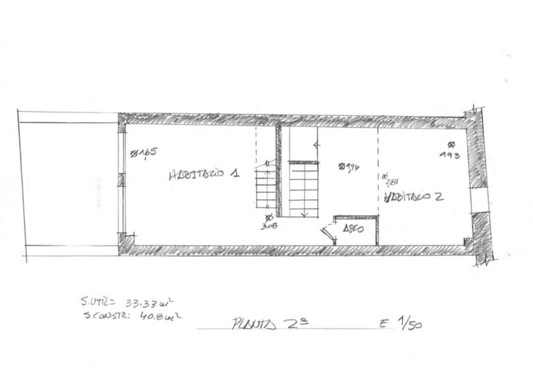
- Planta Segona (40,8 m²): dos habitacions un bany i accés a les golfes.
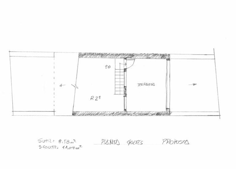
- Planta Golfes (11,09 m2): Una habitació amb la possibilitat de reconvertir en una assolellada terrassa, amb bona vista des de on es veu el campanar de l’església de la Mare de Déu de l'Assumpció famosa per la seva portalada romànica del S XIII.
Serveis municipals: Disposa d’aigua i electricitat amb les altes vigents, fibra òptica per a telèfon i internet
Per què invertir en aquesta casa de poble de 144,7 m2 a Gandesa, Terra Alta?
- Amb un preu de només 55.000 €, aquesta casa de poble de 144,7 m2 a Gandesa, representa una bona oportunitat.
- Gandesa és un municipi amb historia, situat en un entorn natural privilegiat i envoltat de vinyes i muntanyes. Ben comunicat, ja que es capital de comarca.
- Podràs gaudir de passejar per el casc antic amb tota la seva historia templera. L’església del any 1.200 amb la seva magnífica portada de cinc arcs d’origen romànic.
- El seu entorn natural espectacular i pots practicar l’escalada, banys als rius com a La Fontcalda, vies de pràctica de ciclisme o senderisme com la Via Verda o la travessa dels Ports.
- La immediatesa del camp amb oliveres, ametllers, fruitals i vinyes dels que podràs degustar les garnatxes i altres varietats de la D.O. Terra Alta, així com contemplar les obres arquitectòniques dels cellers modernistes de Gandesa i Pinell del Brai.
- Cal valorar que està ben mantinguda, habitada fins ara i per aquesta raó, en molt bon estat.
- Podràs crear l'ambient que sempre has desitjat, aprofitant cada racó per fer d'aquest lloc un refugi personalitzat on el confort i la funcionalitat es troben en perfecta harmonia.
Contacta per a més informació
No deixis escapar aquesta gran oportunitat!
Si vols saber més sobre aquest immoble
a Gandesa, Terra Alta, contacta amb nosaltres.
Hem adjuntat plànols per que vegis las possibilitat que te aquesta casa de poble a Gandesa
Envia’ns un missatge o fes clic a “CONTACTA” i et donarem tots els detalls.
Preguntes freqüents:
Es pot reformar l’interior i ampliar la porta per garatge?
Si. Es sol urbà i es podria reformar i adequar la planta baixa per garatge.
Es pot reformar segons les propostes dels plànols adjunts en l’anunci?
Si. Com que l’estructura està en molt bon estat això permet millorar la distribució al gust del nou propietari i fer-se-la seva.




















































































