Gran mas vistes Ebre a Benifallet | Ref: 117
Descobreix aquest gran mas vistes Ebre
Aquest gran mas vistes Ebre, es troba al terme municipal de Benifallet, comarca del Baix Ebre. Es tracta d’una finca rústica excepcional, amb una superfície de 181.158 m² que combina zones de conreu, pinar i matolls, amb accés directe tant al riu Ebre com a la Via Verda. Un entorn ideal per gaudir de la natura i la tranquil·litat.
El preu d’aquesta gran finca amb Mas, aigua i extraordinàries vistes és de 198.000 €
Característiques del gran mas vistes Ebre
- Comarca: Baix Ebre
- Poble: Benifallet, zona Basseta Roja
- Superfície total: 181.158 m²
- Preu: 198.000 €
- Zones: 47.208 m² cultivables, 105.422 m² de pinar i 28.528 m² d’improductiu i matoll
- Disposa d’aigua abundant: bassa comuna de 100.000 l, bassa privada de 9.000 l i cisterna de pluja de 4.000 l
- Accés directe al riu Ebre i a la Via Verda
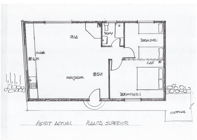
Detalls de l’edificació del gran mas vistes Ebre
- El mas consta de dues plantes amb una superfície construïda total de 125 m² (62,5 m² per planta).
- La superfície útil és de 104,52 m².
- Tant la planta baixa com la superior tenen accés independent sense escales.
- Construït inicialment el 1956, es troba en bon estat però necessita reformes interiors.
Entorn immediat
La finca ofereix unes fantàstiques vistes al riu Ebre, concretament al meandre de Benifallet. L’accés és còmode: només 900 metres des de la carretera per camí asfaltat i a 7 km del centre del poble.
Subministraments
No disposa de connexió a la xarxa elèctrica; és ideal per instal·lar plaques solars o un generador. En canvi, l’aigua està garantida gràcies a la comunitat de regants i les infraestructures pròpies de la finca.
Serveis al poble
Benifallet compta amb tots els serveis necessaris: centre mèdic (CAP), escoles, comerços, piscina, mercat setmanal i una variada oferta gastronòmica amb bons restaurants. També disposa de benzina a prop (Tamoil-Benifallet).
Activitats i entorn
La ubicació permet gaudir d’una àmplia varietat d’activitats: senderisme, ciclisme i cicloturisme a la Via Verda, esports aquàtics al riu Ebre, visitar les coves, el poblat ibèric, els cellers de vins amb DO Terra Alta, excursions al Delta de l’Ebre, als Ports de Beseit i a les platges de la zona, situades a només 30 minuts.
Per a qui és ideal aquesta finca?
- Per viure-hi de forma permanent o com a segona residència
- Per a explotació agrícola amb oliveres, fruiters o hort
- Per muntar una granja o tenir animals com cavalls
- Per als amants de la natura i la tranquil·litat, amb vistes privilegiades al riu Ebre
- Per a projectes de turisme rural aprofitant l’entorn únic i l’accés a la Via Verda
Contacte
Vols més informació o concertar una visita?
👉 [Fes clic aquí per contactar-nos](https://www.rusticfinca.com/contacte) o truca’ns directament. Estarem encantats d’ajudar-te!













































































































