Ref. 093
Casa gran de 315 m2 a dalt de Batea, a la Terra Alta.
Aïllada i amb molt bones vistes.
Llesta per entrar-hi a viure. Divisible en 2 o 3 apartaments.
Disposa de 4 dormitoris dobles, garatge doble i 90 m2 de golfes altes, diàfanes i espaioses i per tant habitables perquè les distribueixis al teu gust. Podràs crear l'ambient que sempre has desitjat, aprofitant cada racó per fer d'aquest lloc un refugi personalitzat on el confort i la funcionalitat es troben en perfecte estat.
Al ser de 90 m2 per planta i segons es veu per la distribució, te l’opció d' instal·lar-hi un ascensor facilment.
Bones condicions per lloguer i explotació de turisme rural, doncs fàcilment es pot redistribuir en dos habitatges i fins i tot en tres o més apartaments.
Té subministra d’aigua, electricitat i cobertura de telèfon.
PREU: 120.000€ (Negociable)
UBICACIÓ I ENTORN
POBLACIÓ: BATEA.
SITUACIÓ: Carrer Via Closa 28 – 30. Zona Sant Miquel.
CARACTERÍSTIQUES DE LA PROPIETAT
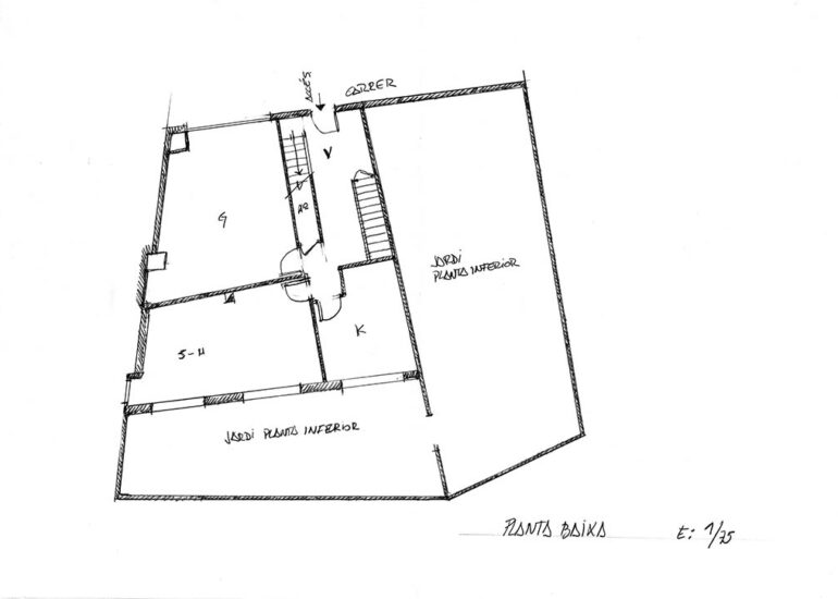
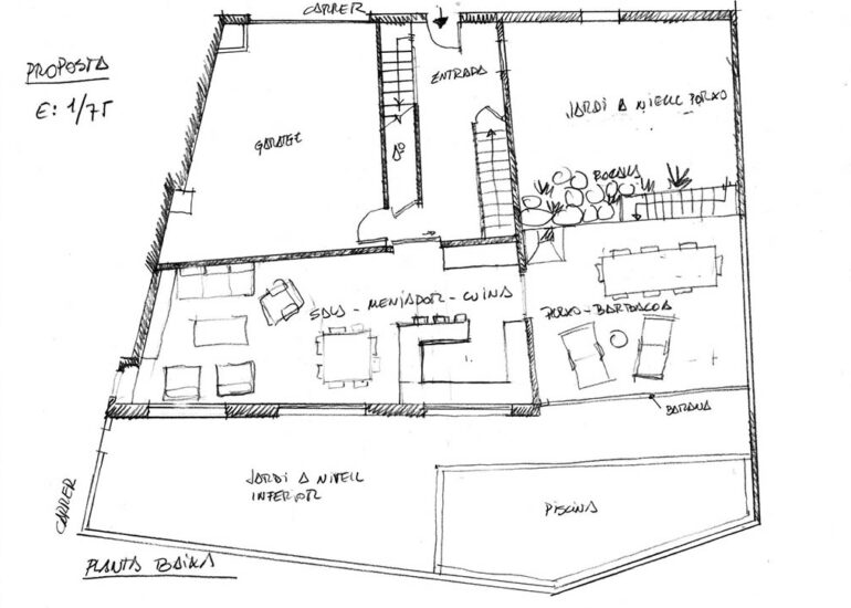
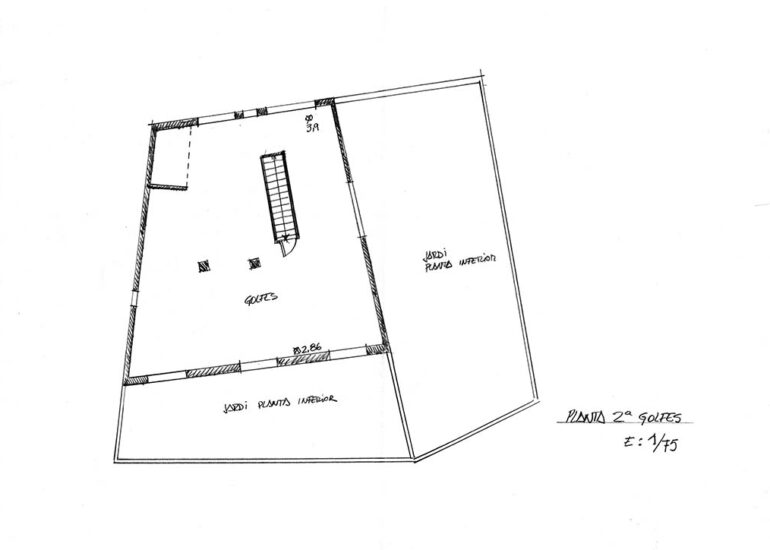
EDIFICACIÓ - (* Veure detalls i plànols)
Es un habitatge que ocupa un solar quadrangular de 97 m2 mes el jardí del costat oest de 81 m2, amb pràcticament quatre façanes i per lo tant ben assolellat i ventilat, sense parets amb veïns així que es pot considerar ben aïllat.
Així que consta de dos solars un edificat i el del est de 81 m2 per edificar a on també es pot instal·lar un porxo amb piscina a la planta inferior i una terrassa a planta baixa al costat i nivell de la cuina. (veure plànol proposta)
Aquesta casa rústica que està situada a la part més alta del nucli antic, us ofereix la possibilitat de dissenyar els espais de la planta inferior, a nivell dels jardins, i de les golfes, al vostre gust, inclòs fen-li un possible terrat a on gaudir de les vistes espectaculars.
Podràs crear l'ambient que sempre has desitjat, aprofitant cada racó per fer d'aquest lloc un refugi personalitzat on el confort i la funcionalitat es trobin en perfecta harmonia.
La situació aïllada, les vistes i l'espai exterior privat al bell mig del poble. Li dona un gran valor difícil de trobar.
SUBMINISTRES: Amb contracte vigent
- Disposa d’aigua de xarxa municipal i d’una cisterna de 4 m3.
- Electricitat: Connexió a la xarxa pública.
ACCÉS:
La finca té l’accés asfaltat per el carrer Vila Closa.
BENEFICIS ADICIONALS:
Aquesta edificació ofereix tranquil·litat i bona connexió amb la natura. Les possibilitats de subdivisió ofereix l’opció de desenvolupar un projecte de turisme rural o simplement de gaudir d'un habitatge ampli amb espai per a tota la família, amb l’opció de lloguer d’una part independent. Tot plegat presenta un gran potencial de revalorització.
No deixis passar aquesta oportunitat única de potenciar el teu patrimoni i viure envoltat de la bellesa i la tranquil·litat que només una casa rústica com aquesta pot oferir.
- El potencial de revalorització és important. Potència el teu patrimoni.
- Interessant per fer una inversió.
ENTORN:
- Batea, a la Terra Alta, és un poble medieval, i per tant amb molta historia que la podràs veure a traves de seu ben conservat patrimoni.
Conèixer la historia del carrer Major, el carrer del Mig, amb els seus portals. Podràs reviure com a la nit, els ravals, els hostals de camí i els masos del terme restaven incomunicats amb la vila A l’hora del toc del lladre, eren tancats tots els portals a pany i clau, barres i cadenes, i no es tornaven a obrir fins al dia següent a la matinada.
- La cultura del vi, fortament arrelada la podràs gaudir practicant l’enoturisme. El poble situat a prop dels ports, te magnifiques vistes que podràs gaudir des de el mirador del Picatxo.
- Podràs gaudir de moltes activitats relaxants tant al acollidor i tranquil poble com del seu entorn.
- La immediatesa del camp amb oliveres, ametllers, i vinyes dels que podràs degustar les garnatxes i altres varietats de la D.O. Terra Alta, així com contemplar les obres arquitectòniques dels cellers modernistes de Gandesa i Pinell del Brai
- A pocs kilòmetres estan pobles que cal conèixer com, Horta de Sant Joan, Bot, Cretes, Beceite, Vallderroures, Calaceite..
- La zona del Matarranya te un paisatge molt particular, un punt salvatge, incloent la seva fauna i flora.
- Tindràs la felicitat de descobrir llocs propers per gaudir de refrescants banys naturals a les Olles de Bot.
- Fer exercici contemplant el paisatge fent cicloturisme per la Via Verda
(*) DETALLS DE L’EDIFICACIÓ
FINCA SUPERFÍCIE SOLAR: 97 m2 segons cadastre
EDIFICI: Les distribucions es poden veure als plànols adjunts a les fotografies.
L’edifici que està en molt bon estat, llest per entra a viure-hi, es composa de les plantes i següents
Superficies Construïdes:
- Planta baixa d’accés des de el carrer: 97 m2 (Vestíbul, cuina, menjador xemeneia, garatge)
- Planta 1ª: 97 m2 (4 dormitoris)
- Planta 2ª golfes d’alçada habitable: 97 m2 (diàfan)
- Planta inferior, per sota de la planta baixa: 47 m2. (Celler diàfan)
- Total Superfície Construida338 m2
A nivell de la Planta Inferior disposa de un JARDÍ de 126m2 que ocupa el costat Sud i Est i per tant mol assolellat.
El del costat est de 81 m2 es de fet es un solar independent i edificable de la mateixa alçada i nombre de plantes de la casa existent.
Contacta amb nosaltres per obtenir més informació. Prem en “CONTACTE” i hi trobaràs tant el meu telèfon com el formulari amb el correu electrònic per poder resoldre els teus dubtes.







































































































