FINCA EN BATEA – Zona Mirador Puerto Beceite
¡Descubre tu refugio perfecto en plena naturaleza!
Te presentamos una encantadora casa rústica en la FINCA EN BATEA, un lugar que espera ser transformado en la casa de tus sueños. Con la libertad de reformar el interior a tu gusto, puedes crear un hogar personalizado y único.
Si eres un amante de la tranquilidad, del aislamiento y del contacto con la naturaleza, no busques más. ¡Esta FINCA EN BATEA lugar perfecto para ti!
PRECIO: 46.000 €
POBLACIÓN: BATEA
SITUACIÓN: Ver plano en las fotografías
FINCA SUPERFICIE: 84.520 M2 / 8,45 ha.
EDIFICACIÓN SUPERFICIE: 130 m²
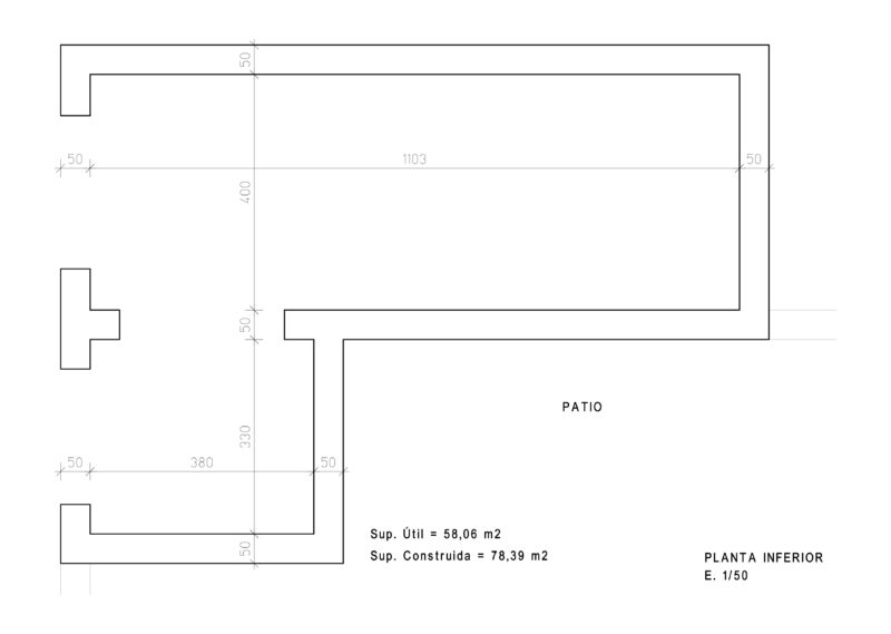
Planta inferior: 55 m²
Planta superior: 75 m²
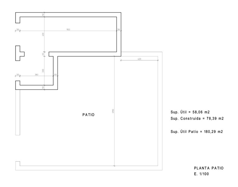
Patio: 180 m²
PLANOS: Ver en las fotografías
DOTACIÓN DE AGUA: Pozo existente a actualizar
PLANTACIÓN: Olivos y almendros
ORIENTACIÓN: Fachadas largas a Este (patio) i Oeste
PARQUE EÓLICO: Algún molino a más de 2 km.
ACCESO: A 6,3 km, 11 min, de Batea.
A 1,1 km, 3 min, de la carretera N-420.
Camino particular.
El espacioso patio de 180 m² añade un valor considerable a esta finca en Batea, ubicada en la zona Mirador Puerto Beceite. Este patio es un atractivo adicional que potencia el encanto y la inversión en esta propiedad.
Pulsa en “CONTACTO” y allí encontrarás tanto mi teléfono como el formulario con el e-mail para que pueda resolver tus dudas.
Visita nuestro Instagram
















